Nous contacter
Maison avec terrain à Monistrol-sur-Loire (Haute-Loire) - [ref #5148662]Notre équipe s'engage à vous répondre dans les plus brefs délais.
« * » indique les champs nécessaires
Agence de
Maison avec terrain à Monistrol-sur-Loire (Haute-Loire)




Maison à étage
[ref #5148662]
Maison avec terrain à Monistrol-sur-Loire
800m² de terrain
88m² de surface habitable
3 chambres
4 pièces
À partir de 285 500 €*
Contactez-nousMaison avec terrain à Monistrol-sur-Loire
[ref #5148662]
PROJET DE CONSTRUCTION – MAISON 90 m² – SOUS-SOL COMPLET – MONISTROL-SUR-LOIRESur la commune très recherchée de Monistrol-sur-Loire, Maisons Punch vous propose ce projet de construction clé en main, idéal pour une famille ou des primo-accédants souhaitant devenir propriétaires dans un environnement privilégié.
Implantée sur un terrain de 800 m² légèrement pentu, cette maison individuelle offre un cadre de vie calme, résidentiel et proche des commodités, des écoles et des axes rapides vers Saint-Étienne.
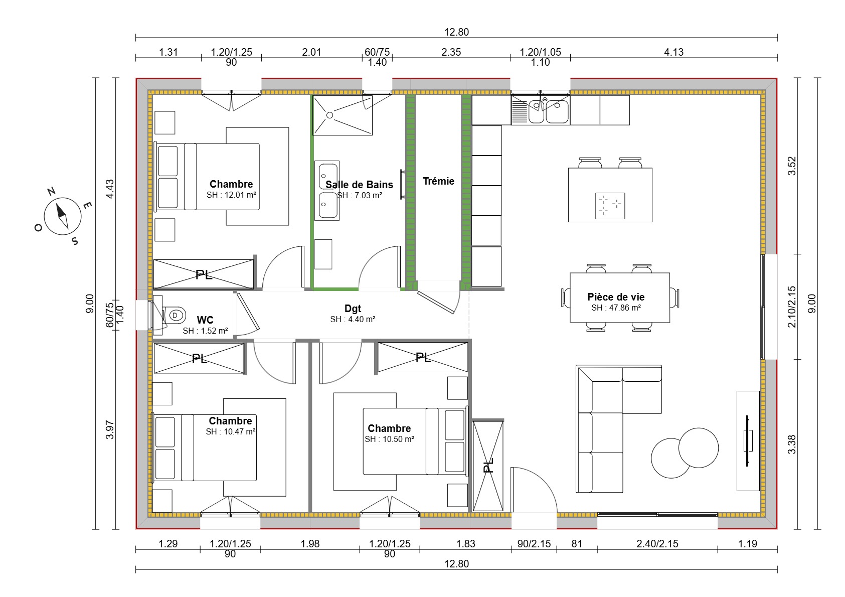
Maison fonctionnelle et moderne de 90 m² habitables comprenant :
Belle pièce de vie lumineuse avec cuisine ouverte
3 chambres confortables avec espaces placards
Salle de bains familiale
WC indépendant
Grandes ouvertures pour un maximum de luminosité naturelle
Sous-sol complet de 100 m² :
Grand garage double
Espace stockage / atelier
Possibilité d’aménagement selon vos besoins (salle de sport, buanderie, espace bricolage…)
Les + du projet :
Secteur recherché et dynamique
Terrain offrant une belle vue et un environnement nature
Maison personnalisable selon vos envies
Construction conforme RE2020 (performance énergétique et confort thermique)
Accompagnement complet dans votre projet de vie
Idéal primo-accédants ou projet familial
Projet étudié selon votre budget et vos besoins.
Pour plus d’informations et étude personnalisée, contactez Maisons Punch Nadia Galland 06.27.91.33.45
Référence vendeur :
Mentions légales
Terrain proposé et vendu par notre partenaire foncier selon disponibilités, le constructeur n’étant pas mandaté pour réaliser la vente du terrain. Prix terrain inclus : 105 000 € Frais de notaire non inclus : 10 000 € Prix maison inclus : 180 500 € VRD non inclus : 25 000 € Hors aménagements extérieurs (extensions, terrasse, piscine etc), papiers peints, peintures, moquettes dans les chambres (tarif en vigueur au 20 mai 2025, modifiable sans préavis, prix variables suivant les prestations souhaitées). Hors frais d’hypothèque. Différents modèles disponibles pour chaque terrain. Assurance RC professionnelle/décennale/dommage ouvrage groupe Aviva. Garantie de remboursement de l'acompte/livraison à prix et délai convenu CGI. Partenaire financier : à préciser Le numéro de TVA intracommunautaire : FR 14 498 627 272 00012 Contact : contact@maisons-punch.frPourquoi choisir Maisons Punch ?
Entreprise familiale
+38 ans à vos côtés
+de 55 000 familles nous font confiance
Des matériaux performants et écologiques
Nos nouvelles annonces
À partir de 285 500 €
Contactez-nous