Nous contacter
Maison avec terrain à Saint-Bonnet-de-Mure (Rhône) - [ref #5108852]Notre équipe s'engage à vous répondre dans les plus brefs délais.
« * » indique les champs nécessaires
Agence de Saint-Priest
contact@maisons-punch.fr
Maison avec terrain à Saint-Bonnet-de-Mure (Rhône)






Maison à étage
[ref #5108852]
Maison avec terrain à Saint-Bonnet-de-Mure
436m² de terrain
97m² de surface habitable
3 chambres
4 pièces
À partir de 405 000 €*
Contactez-nousMaison avec terrain à Saint-Bonnet-de-Mure
[ref #5108852]
OFFRE EXCEPTIONNELLE : 10m² OFFERT + PACK DECO OU PACK CUISINE AU CHOIX.Votre Maison à étage de 94m² Habitables entièrement personnalisable !
Maison Punch vous propose une magnifique maison de à étage de 94 m² sur la commune de Jonage pensée pour le confort et la modernité.
Sur une parcelle de 659m² entièrement viabilisé, Nous vous proposons une construction neuve entièrement modulable à vos goûts.
Caractéristiques :
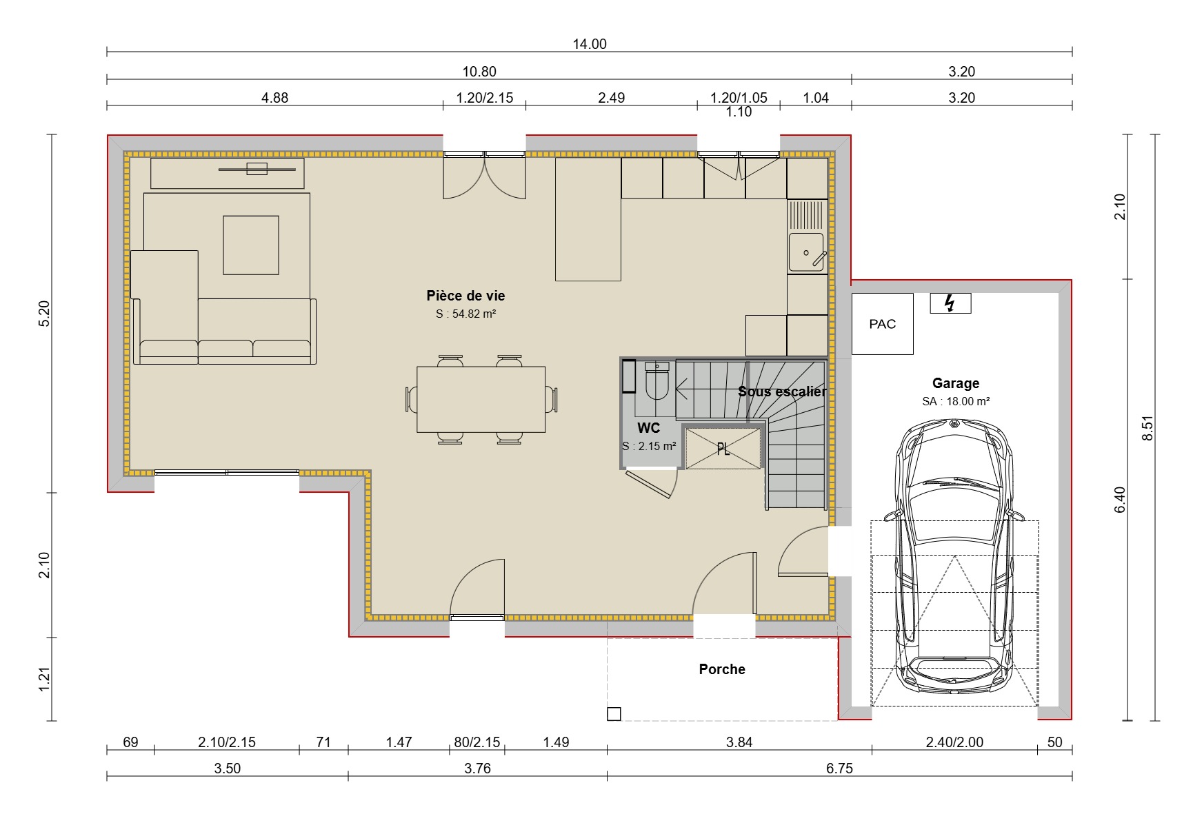
• Superficie totale : 94 m² habitables
• Pièce de vie spacieuse de 45m² avec une cuisine ouverte, pour profiter d’un espace lumineux et convivial ainsi qu’un WC au rez de chaussé.
• Espace nuit comprenant :
o 3 chambres confortables : 2 chambres spacieuse de 13m² ainsi qu’une chambre de 10 m².
• Salle de bain avec baignoire ou douche, selon vos envies, avec WC séparer.
• Garage de 18m² attenant, idéal pour protéger votre véhicule ou pour un espace de rangement supplémentaire.
• Maison conforme à la RE 2020.
Prestations de qualités comprenant de nombreuse options au bon vouloir des futurs acquéreurs.
CONSTRUCTION, TERRAIN ET VRD INCLUS DANS LE PRIX.
Venez découvrir cette maison qui allie praticité et esthétisme. Un projet de vie pour toute la famille dans un cadre où chaque mètre carré a été optimisé pour votre confort.
Mr Romain CASINI
06 84 82 88 41
Chargé de Projets
Maisons Punch
Référence vendeur : Romain Casini
Mentions légales
Terrain proposé et vendu par notre partenaire foncier selon disponibilités, le constructeur n’étant pas mandaté pour réaliser la vente du terrain. Prix terrain inclus : 224 900 € Frais de notaire non inclus : 18 000 € Prix maison inclus : 180 100 € VRD non inclus : 10 600 € Hors aménagements extérieurs (extensions, terrasse, piscine etc), papiers peints, peintures, moquettes dans les chambres (tarif en vigueur au 20 mai 2024, modifiable sans préavis, prix variables suivant les prestations souhaitées). Hors frais d’hypothèque. Différents modèles disponibles pour chaque terrain. Assurance RC professionnelle/décennale/dommage ouvrage groupe Aviva. Garantie de remboursement de l'acompte/livraison à prix et délai convenu CGI. Partenaire financier : à préciser Le numéro de TVA intracommunautaire : FR 14 498 627 272 00012 Contact : contact@maisons-punch.frPourquoi choisir Maisons Punch ?
Entreprise familiale
+38 ans à vos côtés
+de 55 000 familles nous font confiance
Des matériaux performants et écologiques
Nos nouvelles annonces
À partir de 405 000 €
Contactez-nous