Nous contacter
Maison avec terrain à Saint-Trivier-sur-Moignans (Ain) - [ref #5105154]Notre équipe s'engage à vous répondre dans les plus brefs délais.
« * » indique les champs nécessaires
Agence de Bourg-en-Bresse
contact@maisons-punch.fr
Maison avec terrain à Saint-Trivier-sur-Moignans (Ain)



Maison à étage
[ref #5105154]
Maison avec terrain à Saint-Trivier-sur-Moignans
700m² de terrain
100m² de surface habitable
4 chambres
5 pièces
À partir de 285 000 €*
Contactez-nousMaison avec terrain à Saint-Trivier-sur-Moignans
[ref #5105154]
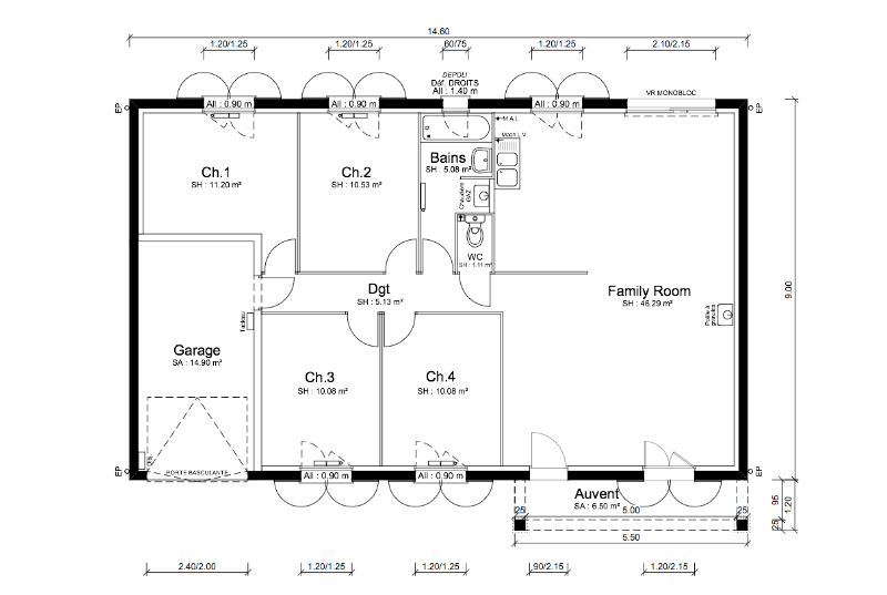
OFFRES A SAISIR : 10 M2 OFFERTS + CUISINE OFFERTE OU PACK DECOÀ Saint-Trivier-sur-Moignans, réalisez votre rêve avec ce projet de construction d’une magnifique maison de plain-pied. Avec ses 4 chambres spacieuses, un garage attenant, et une terrasse couverte, cette maison moderne offre tout le confort pour une vie de famille agréable.
Située sur un terrain plat de 700 m², entièrement viabilisé (VRD inclus), cette propriété est idéale pour profiter du calme, tout en restant proche des écoles et commerces à quelques minutes à pied.
Construite selon les normes RE 2020, cette maison garantit une haute performance énergétique et un respect de l'environnement, vous assurant ainsi économies et bien-être au quotidien.
Ce projet est une opportunité rare dans un cadre de vie privilégié, alliant confort moderne et proximité des services essentiels.
Pour plus de renseignements, contactez Mme Viana au 06/07/10/89/44 et concrétisez votre projet de vie dans ce charmant village !
Référence vendeur : Carole Viana
Mentions légales
Terrain proposé et vendu par notre partenaire foncier selon disponibilités, le constructeur n’étant pas mandaté pour réaliser la vente du terrain. Prix terrain inclus : 124 900 € Frais de notaire non inclus : 12 000 € Prix maison inclus : 160 100 € VRD non inclus : 10 000 € Hors aménagements extérieurs (extensions, terrasse, piscine etc), papiers peints, peintures, moquettes dans les chambres (tarif en vigueur au 20 mai 2024, modifiable sans préavis, prix variables suivant les prestations souhaitées). Hors frais d’hypothèque. Différents modèles disponibles pour chaque terrain. Assurance RC professionnelle/décennale/dommage ouvrage groupe Aviva. Garantie de remboursement de l'acompte/livraison à prix et délai convenu CGI. Partenaire financier : à préciser Le numéro de TVA intracommunautaire : FR 14 498 627 272 00012 Contact : contact@maisons-punch.frPourquoi choisir Maisons Punch ?
Entreprise familiale
+38 ans à vos côtés
+de 55 000 familles nous font confiance
Des matériaux performants et écologiques
Nos nouvelles annonces
À partir de 285 000 €
Contactez-nous